Description
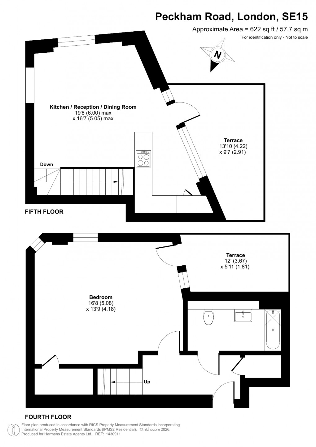
- Split-level one-bedroom apartment
- Two Expansive Terraces
- Communal tree-lined courtyard
- Attractive mansion block development
- Well-connected location with strong transport links
- Close to a wide range of local amenities and green spaces
This beautifully presented split level one bedroom apartment offers a unique layout, generous proportions and an excellent balance of indoor and outdoor living, set within an attractive mansion block on Peckham Road. Arranged over two floors, the property has been thoughtfully designed to maximise space and natural light.
The lower level comprises a large and well-proportioned bedroom which benefits from its own private terrace. The layout provides a clear separation between living and sleeping areas, adding both privacy and practicality. The upper level features a bright and spacious open plan kitchen and living area with a modern finish and plenty of room for both relaxing and entertaining. From here there is direct access to a private terrace, creating a natural extension of the living space and an ideal setting for outdoor dining or unwinding.
The building is centred around a well maintained tree lined communal courtyard, adding to the overall sense of space and character rarely found in properties of this type.
Positioned in a highly convenient location, the property is surrounded by a vibrant mix of cafes, restaurants and everyday amenities, while also being within easy reach of green open spaces. Excellent transport links are available nearby, providing straightforward access into Central London and beyond.
Floorplan
To discuss this property call us:
Market your property
with Harmens
Book a market appraisal for your property today. Our virtual options are still available if you prefer.
